Категория
Розничная и оптовая торговля
Окупаемость
—
Прибыль
по запросу
Город
Ростов-на-Дону
Возраст бизнеса
3-5 лет
Полная стоимость
7 000 000 р
АлтераИнвест
Информация о бизнесе
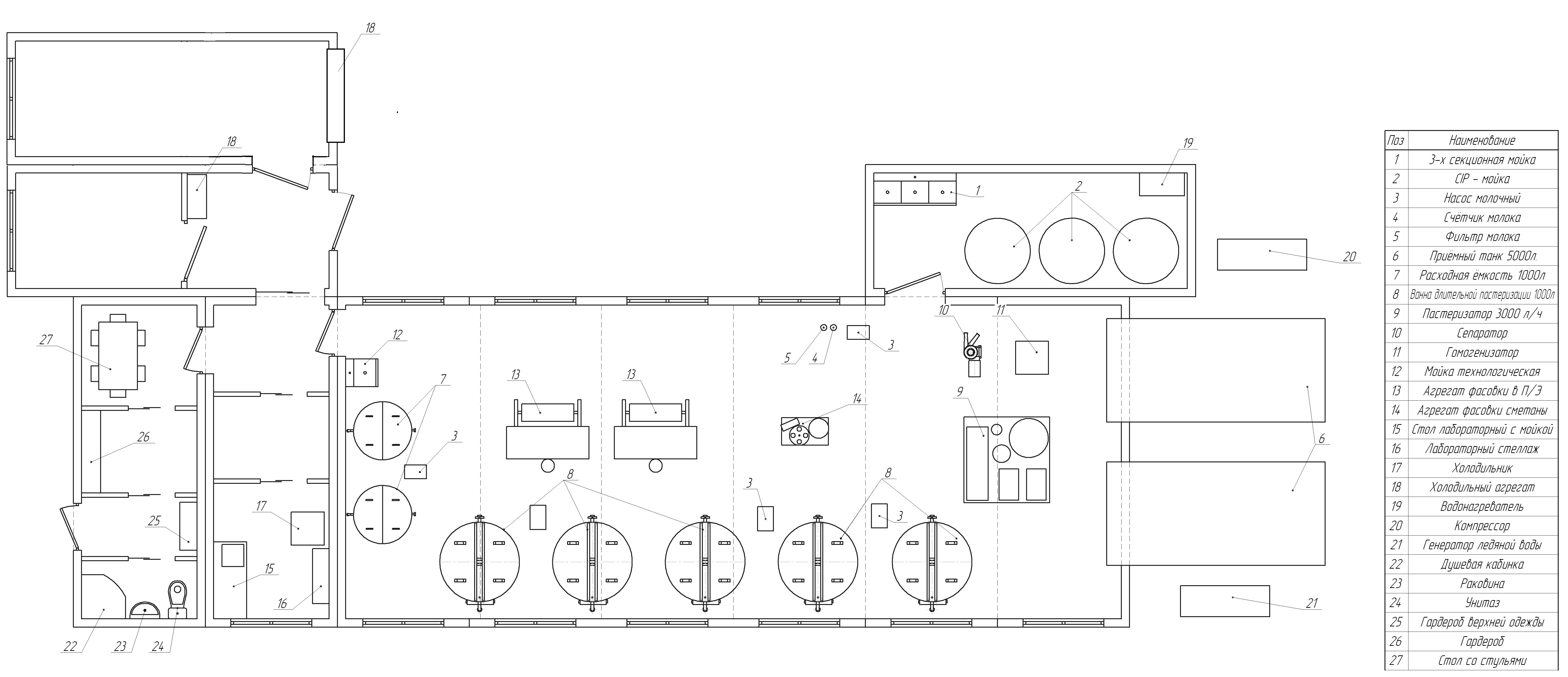
Модульный завод переработки молока 2014 г.в.
Место нахождения: г. Городовиковск, 100 км от Ставрополя, 200 км от Ростова-на-Дону.
Конструкция завода позволяет демонтировать всё до фундамента (от полов до крыши) за несколько дней и собрать на новом месте. Всё перевозится на 7 (семи) фурах.
Технические характеристики:
Исходное сырье-молоко натуральное коровье
Объем перерабатываемого молока: до 20000 кг/сутки (двухразовая загрузка)
Ассортимент выпускаемой продукции:
- молоко питьевое пастеризованное
- напитки кисломолочные
- сметана
- творог
- Фасовка в п/э пакеты – до 3000пакетов/час
- Фасовка в стаканы – до 600 стаканов/час
- Установленная мощность, кВт – 170 кВт; напряжение – 380/220 В
- Расход воды 2,0 м3 в сутки на санобработку;
- Количество обслуживающего персонала – 5чел.
- Площадь застройки – 250 м².
Местоположение
Карта
Карта
Карта
Карта
Карта
Карта
Карта
Карта
Карта
Карта
Карта
Карта
Карта
Карта
Карта
Карта
Карта
Карта
Карта
Карта
Карта
Карта
Карта
Карта
Карта
Карта
Карта
Карта
Карта
Город
Ростов-на-Дону
Дополнительно
Возраст бизнеса
3-5 лет
Похожие
по цене
по категории
24.09.2024
14:24
Валерий Соловчук
27.06.2018
16:36
Наталья Кусакина
23.04.2024
19:24
АлтераИнвест
09.06.2018
14:46
Дмитрий
09.06.2018
14:48
Вячеслав Щеголев
13.11.2024
12:22
Андрей Мазуров
23.12.2025
08:02
АлтераИнвест
23.04.2024
19:26
АлтераИнвест
23.04.2024
19:06
АлтераИнвест
09.06.2018
14:48
АлтераИнвест
08.03.2025
17:40
АлтераИнвест
05.04.2025
16:18
АлтераИнвест
18.05.2025
16:56
АлтераИнвест
23.04.2024
19:26
АлтераИнвест
23.04.2024
19:16
АлтераИнвест
09.06.2018
14:46
АлтераИнвест
23.04.2024
18:58
АлтераИнвест











